Характеристики мотор-редуктора A/F-301
В таблице указаны технические характеристики мотор-редуктора A/F-301 с электродвигателем 1500 об/мин. Мощность двигателя рассчитана с учетом сервис-фактора, который равен “1”. Допустимая частота вращения электромотора – 3000, 1500, 1000, 750 об/мин, для подробных просчетов характеристик и параметров, свяжитесь с менеджером для бесплатной консультации.
| Мотор-редуктор | Передаточное число | Количество оборотов на выходе, об/мин | Номинальный крутящий момент, Нм | Мощность двигателя на 1400 об/мин | Радиальная нагрузка, кН | Габарит электродвигателя DIN | |||
|---|---|---|---|---|---|---|---|---|---|
| Входной вал | Выходной вал | ||||||||
| A301, AF301 | 8.88 | 157.7 | 55 | 0.91 | 1.2 | 1.0 | 71 | 80 | 90 |
| 7.78 | 180.0 | 0.94 | 71 | 80 | 90 | ||||
| 6.18 | 226.5 | 1.19 | 0.9 | 71 | 80 | 90 | |||
| 5.58 | 250.7 | 1.31 | 71 | 80 | 90 | ||||
| 5.08 | 275.8 | 45 | 1.30 | 71 | 80 | 90 | |||
| 4.27 | 328.1 | 1.55 | 1.1 | 0.8 | 71 | 80 | 90 | ||
| 3.65 | 383.9 | 1.81 | 71 | 80 | 90 | ||||
| 3.16 | 443.3 | 40 | 1.86 | 0.7 | 71 | 80 | 90 | ||
| 2.76 | 506.9 | 30 | 1.59 | 71 | 80 | 90 | |||
| 2.59 | 540.4 | 1.70 | 71 | 80 | 90 | ||||
| 2.04 | 686.8 | 25 | 1.80 | 71 | 80 | 90 | |||
| 1.47 | 953.2 | 2.50 | 1.0 | 0.6 | 71 | 80 | 90 | ||
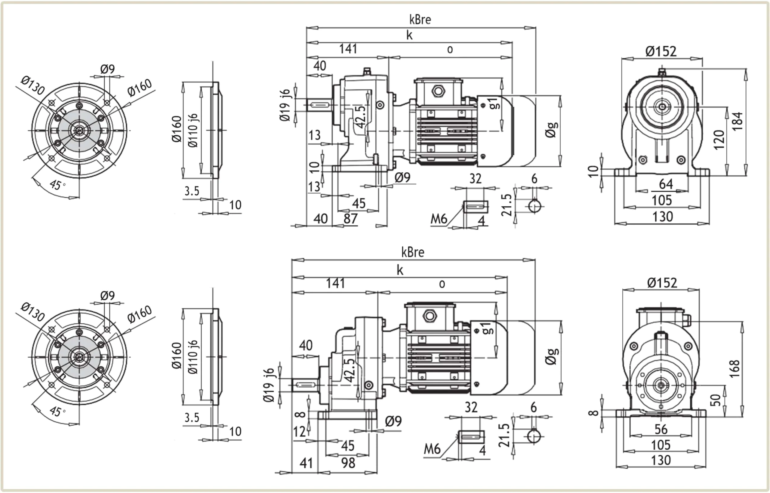
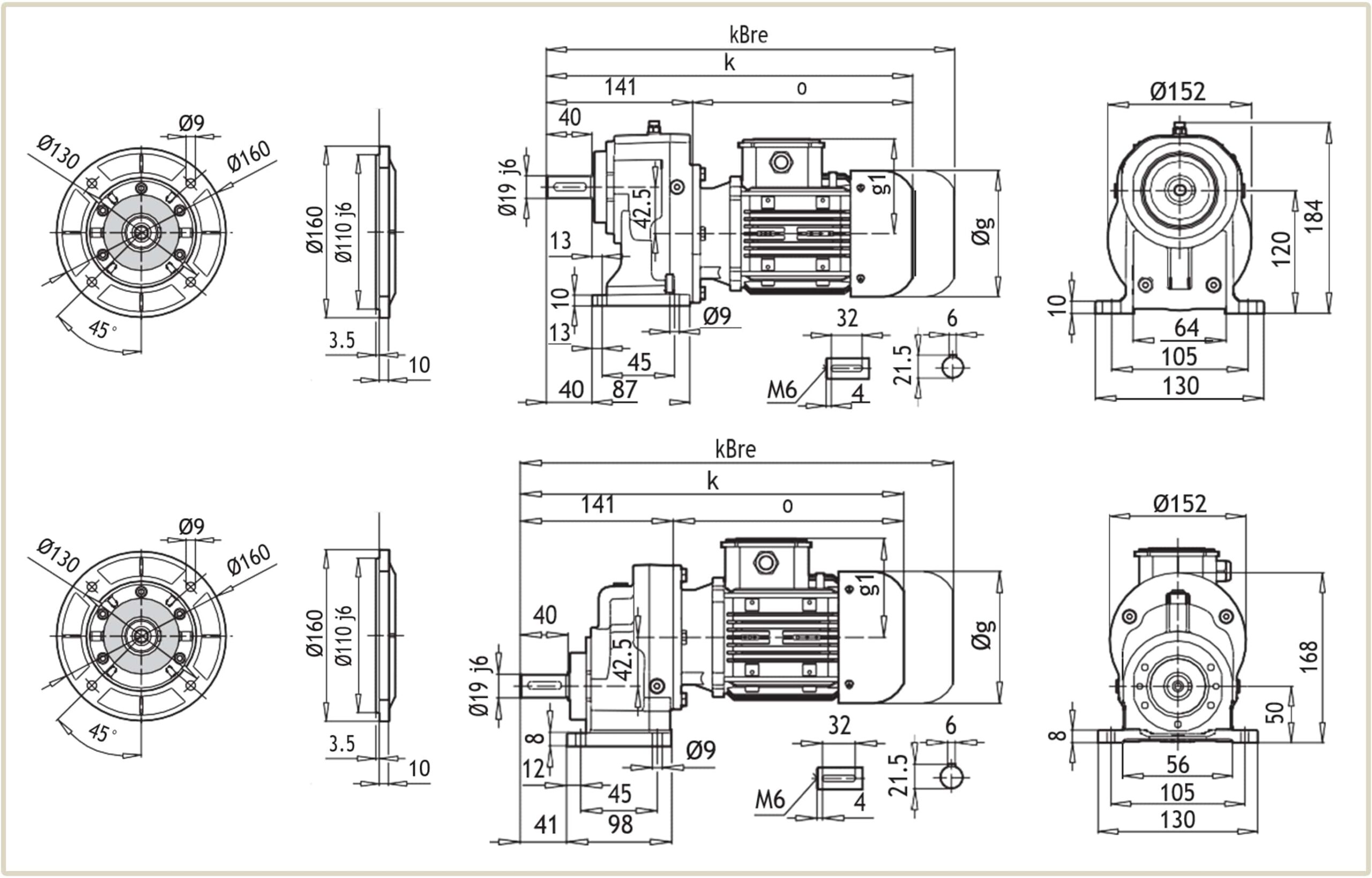
Чертеж размеров редуктора A/F-301
На чертеже указаны габаритные и присоединительные размеры редуктора A-301, отличие AF-301/AF-M-301 в наличии фланца, размеры которого указаны в левой части чертежа.
| Условное обозначение | Размер в зависимости от габарита электродвигателя, мм | |||
| 71 M | 80 M | 90 S | 90 L | |
| g | 140 | 159 | 193 | 193 |
| g1 | 119 | 127 | 151 | 151 |
| k | 382 | 408 | 454 | 474 |
| kBre | 442 | 470 | 527 | 547 |
| o | 241 | 267 | 313 | 333 |
Присоединительные размеры под электродвигатель
Присоединительные размеры мотор-редукторов A/F-301 подходят для агрегатации с электродвигателями европейского стандарта DIN и двигателей АИР изготовленных по ГОСТ. Для подбора электрического двигателя – ознакомьтесь с таблицей присоединительных размеров фланцев.
| Мотор-редуктор | PAM | Присоединительные размеры под электродвигатель, мм | Вес редукторной части, кг | |||||||||
| Øa2 | Øb2 | Øe2 | f2 | Øs2 | Ød1 | l1 | t1 | u1 | o | |||
| A/F 301 | 63B14 | 90 | 60 | 75 | 2.5 | 6 | 11 | 25 | 12.8 | 4 | 57 | 5 |
| 71B5 | 160 | 110 | 130 | 5 | M8 | 14 | 32 | 16.3 | 5 | 69 | 6 | |
| 71B14 | 105 | 70 | 85 | 2.5 | 7 | 14 | 32 | 16.3 | 5 | 69 | 5,5 | |
| 80B5 | 200 | 130 | 165 | 5 | M10 | 19 | 42 | 21.8 | 6 | 90 | 6,5 | |
| 80B14 | 120 | 80 | 100 | 3 | 7 | 19 | 42 | 21.8 | 6 | 90 | 5,5 | |
| 90B5 | 200 | 130 | 165 | 5 | M10 | 24 | 52 | 27.3 | 8 | 90 | 6,5 | |
Монтажное положение и объем масла
Одноступенчатые цилиндрические мотор-редукторы A/F-301 имеют возможность установки в горизонтальном и вертикальном положении.
В зависимости от варианта крепления, меняется количество заправляемой смазки. В таблице указан объем масла для каждого монтажного исполнения.
| Монтажное положение мотор-редуктора AF301 | Количество смазки, л |
| M1 | 0.5 |
|---|---|
| M2 | 0.35 |
| M3 | 0.2 |
| M4 | 0.5 |
| M5 | 0.35 |
| M6 | 0.35 |
Расшифровка обозначения маркировки A/F-301
Условное обозначение маркировки модели содержит информацию о габарите, передаточном отношении и варианте крепления.
Мотор редуктор A 301 3,65 FA PAM 80 — B5 80В / 4B BRE, где
- А — Мотор редуктор цилиндрический;
- 301 — габарит редуктора;
- 3,65— передаточное отношение;
- FA — выходной фланец редуктора;
- PAM 80 — B5 — фланец для двигателя;
- 80В / 4B BRE — типоразмер электродвигателя.
Купить цилиндрический мотор-редуктор A/F-301
У нас вы можете купить цилиндрический мотор-редуктор AF-M-301 или А-301 производства немецкой компании NRW на турецком заводе PGR. Специалисты «Системы Качества» помогут вам подобрать и заказать нужный редуктор A/F-301 для конвейера, транспортерной ленты, подъёмника, насоса. Гарантия на оборудование – 12 месяцев. Оплата с НДС или без НДС, наложенным платежом на почте. Отправка перевозчиками: Новая Почта, Деливери, САТ, самовывоз со склада.
Цена редуктора A/F301 зависит от мощности и оборотов электродвигателя. Для опта действует система скидок 5-15% от прайса. Для просчета стоимости нужной модели – обратитесь к менеджеру или отправьте запрос на почту.









Виктория Владимировна