Технические характеристики
В таблице указаны технические характеристики лебедки ТЛ-8Б согласно паспорта: тяговое усилие, скорость навивки каната на барабаны, вес буксируемых вагонов, канатоемкость и тд.
| Маневровая лебедка ТЛ-8Б | Технические характеристики | ||||||||
| Тяговое усилие, кгс | Скорость навивки на 1 слое, м/с | Канатоёмкость, м | Диаметр каната, мм | Редуктор | Масса груза в ЖД вагонах, т | Мощность двигателя, кВт | Габариты, мм | Масса, кг | |
| Главный барабан | 5000 | 0,035 | 220 | 22,5 | 1Ц2У-315/РМ-500 | 315 | 3,0 | 1534x1545x925 | 1200 |
| Вспомогательный барабан | 500 | 0,38 | 230 | 6,9 | 1Ц2У-160/РМ-250 | – | |||
Требования к эксплуатации

- Температура окружающей среды – от – 40°С до + 40°С;
- Напряжение питания – 380/660 В;
- Частота тока – 50 Гц;
- Концентрация пыли – до 10 мг/м3;
- Рабочее положение – крепление на горизонтальной плоскости;
- Влажность – не более 85%;
- Режим работы – средний.
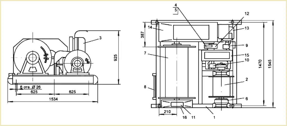
Устройство
- Сварная рама;
- Вспомогательный барабан;
- Электрический шкаф;
- Тормозная лента;
- Кулачковая муфта;
- Тормозная лента;
- Главный барабан;
- Ролик;
- Соединительная муфта;
- Шестерня;
- Корпус подшипника;
- Шестерня;
- Электродвигатель;
- Редуктор Ц2У-315Н;
- Редуктор Ц2У-160;
- Подшипник опоры.
Схема установки
Лебедка ТЛ-8Б устанавливается на заранее спроектированный фундамент, согласно инструкции по установке и руководству по эксплуатации. Крепеж к площадке выполняется анкерными болтами через отверстия предусмотренные конструкцией рамы. Подробный монтаж с правильным расположением оборотного блока представлен на схеме:
- Лебедка ТЛ-8Б;
- Канат главного барабана;
- Канат вспомогательного барабана;
- Место соединения канатов;
- Оборотный блок;
- Железнодорожный состав.
Где купить лебедку ТЛ-8Б в Украине?
У Систем Качества вы можете купить лебедку ТЛ-8Б в стандартной комплектации или согласно вашему техническому заданию. Маневровая железнодорожная лебедка ТЛ-8Б может поставляться в общепромышленном или взрывозащищенном исполнении. Перед отгрузкой все оборудование проходит испытание и проверку ОТК.
Цена
Цена лебедки ТЛ-8Б зависит от типа исполнения, комплектации, производителя основных узлов. Лебедки могут комплектоваться запчастями производства Украины, Китая и Белоруссии, адаптируя стоимость под бюджет заказчика. Для просчета цены электрической лебедки ТЛ-8Б – свяжитесь с менеджером по телефону или пришлите техническое задание на электронную почту.








Виктория Владимировна