Технические характеристики
В таблице указаны технические характеристики лебедки ТЛ-7 А согласно технического паспорта производителя: тяговое усилие, скорость навивки каната на барабан, масса, канатоемкость и диаметр каната, марка редуктора и двигателя, габариты.
| Тяговая лебедка | Технические характеристики | |||||||||
| Тяговое усилие, кгс | Скорость навивки, м/с | Канатоёмкость, м | Диаметр каната, мм | Редуктор | Мощность, квт | Тормоз | Габариты | Вес, кг | ||
| средняя | пониженная | |||||||||
| ТЛ-7А-1 | 5000 | 0,31 | 0,14 | 250 | 22,5 | Ц2У-400 | 15 | ТКГ-300 | 1780x1815x1185 | 1950 |
| ТЛ-7А-2 | 5800 | 0,32 | – | 250 | 22,5 | – | 22 | ТКГ-300 | 1763x1617x1041 | 2000 |
Требования к эксплуатации

- Температура окружающей среды – от – 40°С до + 40°С;
- Напряжение питания – 380/660 В;
- Частота тока – 50 Гц;
- Концентрация пыли – до 10 мг/м3;
- Рабочее положение – крепление на горизонтальной плоскости;
- Влажность – не более 85%;
- Режим работы – легкий.
Устройство
Тяговая электрическая лебедка ТЛ-7 состоит из сварной рамы, на которой установлен редуктор с канатным барабаном, пусковой аппаратуры, электродвигателя и тормозной системы. В тормозную систему входит колодочный тормоз ТКГ с электрогидравлическим толкателем и тормозной шкив выполняющий роль муфты соединения двигателя и механического редуктора. Барабан представляет собой стальной или чугунный двухребордный цилиндр для многослойного наматывания троса. Крепится на тихоходный вал редуктора с одной стороны и на подшипниковую опросу с другой. Крепление каната к барабану прижимными планками. В Лебедке ТЛ-7А-1 устанавливается крановый двигатель, в ТЛ-7А-2 – общепромышленный, взрывозащищенный, одно или двухскоростной.
Чертеж и габаритные размеры лебедки ТЛ-7А-1
- Сварная рама;
- Барабан для намотки троса;
- Цилиндрический двухступенчатый редуктор Ц2У-400Н;
- Крановый электродвигатель MTKF-411-8;
- Блок резисторов;
- Командокороллер кулачковый;
- Электрогидравлический колодочный тормоз ТКГ-300;
- Муфта втулочно-пальцевая с тормозным шкивом.
- Опорный подшипника
- Подшипниковая опора;
- Пусковой шкаф электроаппаратуры;
- Трос (канат).
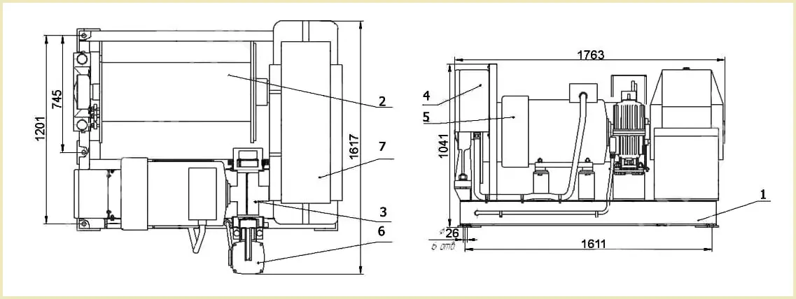
Чертеж и габаритные размеры лебедки ТЛ-7А-2
На чертеже изображенный габаритные размеры и основные элементы конструкции лебедки ТЛ-7А-2:
- Рама;
- Канатный барабан;
- Соединительная муфта;
- Пусковая аппаратура;
- Электродвигатель;
- Тормоз;
- Редуктор.
Где купить тяговую электрическую лебедку ТЛ-7 А в Украине?
У Систем Качества вы можете купить лебедку ТЛ-7А-1, ТЛ-7А-2 в стандартной комплектации или согласно вашему техническому заданию. Лебедка ТЛ-7 может поставляться в общепромышленном или взрывозащищенном исполнении. В дополнительную комплектацию входят: частотные преобразователи, радиоуправление или выносной пульт управления, канатоукладчик (тросоукладчик), звуковая сигнализация. Перед отгрузкой все оборудование проходит испытание и проверку ОТК.
В стандартную комплектацию поставки входит: лебедка ТЛ-7А без каната, паспорта совмещенные с руководством (инструкцией) по эксплуатации лебедки, электродвигателя, редуктора, колодочного тормоза.
Цена
Цена лебедки ТЛ-7 зависит от типа исполнения, комплектации, производителя основных узлов. Лебедки могут комплектоваться запчастями производства Украины, Китая и Белоруссии, адаптируя стоимость под бюджет заказчика. Для просчета цены электрической лебедки ТЛ-7А-2 или ТЛ-7А-1 – свяжитесь с менеджером по телефону или пришлите техническое задание на электронную почту.








Виктория Владимировна