Технические характеристики
В таблице указаны технические характеристики лебедок ТЭЛ-5 и ТЭЛ-5 согласно технического паспорта производителя: тяговое усилие, скорость навивки каната на барабан, масса, канатоемкость и диаметр каната, марка редуктора и двигателя, габариты.
| Тяговая лебедка | Технические характеристики | ||||||||
| Тяговое усилие, кгс | Скорость навивки, м/с | Канатоёмкость, м | Диаметр каната, мм | Редуктор | Мощность, квт | Тормоз | Габариты | Вес, кг | |
| ТЭЛ-5 | 5000 | 0,028 | 220 | 22,5 | Ц2У-160/Ц2У-315 | 3 | ТКГ-160 | 1625x1750x1470 | 1400 |
| ТЭЛ-5А | 5700 | 0,02 | 270 | 24 | Ц2У-160/Ц2У-400 | 7,5 | ТКГ-200 | 1740x1440x1015 | 1500 |
Требования к эксплуатации

- Температура окружающей среды – от – 40°С до + 40°С;
- Напряжение питания – 380/660 В;
- Частота тока – 50 Гц;
- Концентрация пыли – до 10 мг/м3;
- Рабочее положение – крепление на горизонтальной плоскости;
- Влажность – не более 85%;
- Режим работы – легкий.
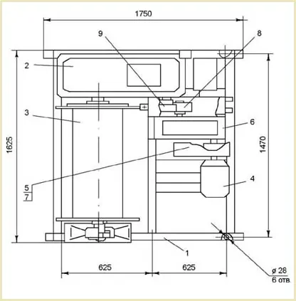
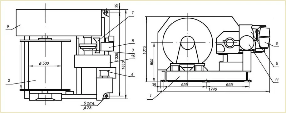
Устройство и габаритные размеры
Лебедка ТЭЛ-5

- Сварная рама;
- Редуктор цилиндрический Ц2У-315;
- Барабан для намотки троса;
- Электродвигатель 3 кВт;
- Муфта втулочно-пальцевая с тормозным шкивом;
- Редуктор двухступенчатый Ц2У-160;
- Колодочный тормоз ТКГ-160;
- Шестерня;
- Шестерня.
Лебедка ТЭЛ-5А
- Сварная рама;
- Канатный барабан;
- Муфта соединительная;
- Муфта втулочно-пальцевая с тормозным шкивом.
- Пусковая электроаппаратура;
- Защитный кожух;
- Защитный кожух;
- Колодочный тормоз ТКГ-200;
- Редуктор двухступенчатый Ц2У-400;
- Редуктор дцилиндрический Ц2У-160;
- Электродвигатель АИР132М6 7,5 кВт 1000 об/мин.
Где купить тяговую электрическую лебедку ТЭЛ-5 в Украине?
У Систем Качества вы можете купить лебедку ТЭЛ-5, ТЭЛ-5А в стандартной комплектации или согласно вашему техническому заданию. Лебедка ТЭЛ5 может поставляться в общепромышленном или взрывозащищенном исполнении. В дополнительную комплектацию входят: частотные преобразователи, радиоуправление или выносной пульт управления, канатоукладчик (тросоукладчик), звуковая сигнализация. Перед отгрузкой все оборудование проходит испытание и проверку ОТК.
В стандартную комплектацию поставки входит: лебедка ТЭЛ-5 без каната, паспорта совмещенные с руководством (инструкцией) по эксплуатации лебедки, электродвигателя, редуктора, колодочного тормоза.
Цена
Цена лебедки ТЭЛ-5А или ТЭЛ-5 зависит от типа исполнения, комплектации, производителя основных узлов. Лебедки могут комплектоваться запчастями производства Украины, Китая и Белоруссии, адаптируя стоимость под бюджет заказчика. Для просчета цены электрической тяговой лебедки ТЭЛ-5 А – свяжитесь с менеджером по телефону или пришлите техническое задание на электронную почту.







Виктория Владимировна