Технические характеристики
В таблице указаны технические характеристики лебедок ТЭЛ-10, ТЭЛ-10.4, ТЭЛ-10Б, ТЭЛ-10Б.1, ТЭЛ-10Б.2, ТЭЛ-10Д согласно технического паспорта производителя: тяговое усилие, скорость навивки каната на барабан, масса, канатоемкость и диаметр каната, марка редуктора и двигателя, габариты.
| Тяговая лебедка | Технические характеристики | ||||||||
| Тяговое усилие, кгс | Скорость навивки, м/с | Канатоёмкость, м | Диаметр каната, мм | Редуктор | Мощность, квт | Тормоз | Габариты | Вес, кг | |
| ТЭЛ-10 | 10000 | 0,065 | 300 | 28 | Ц2Н-450/Ц2У-200 | 11 | ТКГ-200 | 2125x2297x1310 | 5500 |
| ТЭЛ-10.4 | 0,065 | 300 | – | 11 | – | 2234x1920x1195 | 3300 | ||
| ТЭЛ-10Б | 0,54 | 670 | Ц2Н-500/Ц2У-315Н | – | ТКГ-200/ТКГ-300 | 2599х2125х1295 | 5000 | ||
| ТЭЛ-10Б.1 | 0,54 | 670 | – | – | 2599х2125х1295 | 4800 | |||
| ТЭЛ-10Б.2 | 0,27 | 670 | – | – | 2354x2020x1295 | 4700 | |||
| ТЭЛ-10Д | 0,29 | 300 | Ц2Н-500/Ц2У-315Н | 45/15 | ТКГ-400 | 2395х2379х1365 | 5000 | ||
Требования к эксплуатации
Лебедка ТЭЛ 10 рассчитана на эксплуатацию в таких условиях:
- Температура окружающей среды – от – 40°С до + 40°С;
- Напряжение питания – 380/660 В;
- Частота тока – 50 Гц;
- Концентрация пыли – до 10 мг/м3;
- Рабочее положение – крепление на горизонтальной плоскости;
- Влажность – не более 85%;
- Режим работы – легкий.
Устройство
Тяговая электрическая лебедка ТЭЛ-10 состоит из сварной рамы, на которой установлен вспомогательный и основной редуктор с канатным барабаном, пусковой аппаратуры, электродвигателя и тормозной системы. В тормозную систему входит колодочный тормоз ТКГ с электрогидравлическим толкателем и тормозной шкив выполняющий роль муфты соединения двигателя и механического редуктора. Барабан представляет собой стальной или чугунный двухребордный цилиндр для многослойного наматывания троса. Крепится на тихоходный вал редуктора с одной стороны и на подшипниковую опросу с другой. Крепление каната к барабану прижимными планками.
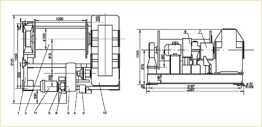
На чертеже изображенный габаритные размеры и основные элементы конструкции лебедки ТЭЛ-10:
- Сварная рама;
- Барабан для намотки троса;
- Муфта втулочно-пальцевая с тормозным шкивом.
- Муфта соединительная;
- Пусковая электроаппаратура;
- Защитный кожух;
- Защитный кожух;
- Колодочный тормоз ТКГ-200;
- Редуктор 1Ц2У-200 или РМ-350;
- Редуктор Ц2Н-450 или РМ-650;
- Электродвигатель 11 кВт.
Где купить тяговую электрическую лебедку ТЭЛ-10 в Украине?
У Систем Качества вы можете купить лебедки ТЭЛ-10, ТЭЛ-10.4, ТЭЛ-10Б, ТЭЛ-10Б.1, ТЭЛ-10Б.2, ТЭЛ-10Д в стандартной комплектации или согласно вашему техническому заданию. Лебедка ТЭЛ10 может поставляться в общепромышленном или взрывозащищенном исполнении. В дополнительную комплектацию входят: частотные преобразователи, радиоуправление или выносной пульт управления, канатоукладчик (тросоукладчик), звуковая сигнализация. Перед отгрузкой все оборудование проходит испытание и проверку ОТК.
В стандартную комплектацию поставки входит: лебедка ТЭЛ-10 без каната, паспорта совмещенные с руководством (инструкцией) по эксплуатации лебедки, электродвигателя, редуктора, колодочного тормоза.
Цена
Цена лебедок ТЭЛ-10, ТЭЛ-10.4, ТЭЛ-10Б, ТЭЛ-10Б.1, ТЭЛ-10Б.2, ТЭЛ-10Д зависит от типа исполнения, комплектации, производителя основных узлов. Лебедки могут комплектоваться запчастями производства Украины, Китая и Белоруссии, адаптируя стоимость под бюджет заказчика. Для просчета цены электрической тяговой лебедки ТЭЛ-10 – свяжитесь с менеджером по телефону или пришлите техническое задание на электронную почту.







Виктория Владимировна